





















Opis nieruchomości
Będzin – Gzichów, ul. Partyzantów
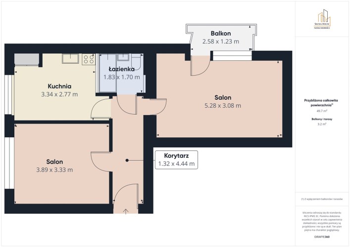
2 pokoje | balkon z widokiem na Park Pałacowy Mieroszewskich | mieszkanie do remontu | duża kuchnia | piwnica i strych
Na sprzedaż mieszkanie położone w jednej z najbardziej zielonych i spokojnych części Będzina – w dzielnicy Gzichów, przy ul. Partyzantów, w bezpośrednim sąsiedztwie Parku Pałacowego Mieroszewskich.
Opis nieruchomości:
-
2 nieprzechodnie pokoje,
-
duża, widna kuchnia z oknem,
-
balkon z pięknym widokiem na park i zieleń,
-
mieszkanie dwustronne, bardzo dobrze doświetlone,
-
do remontu – możliwość aranżacji według własnego pomysłu,
-
do mieszkania przynależy duża piwnica,
-
do dyspozycji strych ogólnodostępny, z uzgodnioną częścią do wyłącznego korzystania (znajduje się bezpośrednio nad mieszkaniem).
Budynek i otoczenie:
Czysta, zadbana klatka schodowa. Budynek położony w kameralnej, cichej okolicy, otoczonej zielenią. Z balkonu i okien rozpościera się widok na Park Pałacowy Mieroszewskich – idealne miejsce na spacery i wypoczynek.
Lokalizacja:
Dzielnica Gzichów – jedna z najbardziej poszukiwanych części Będzina.
W pobliżu:
-
przystanki komunikacji miejskiej (autobusy ZTM z kierunkami do Czeladzi, Dąbrowy Górniczej, Sosnowca i Katowic),
-
szkoły, przedszkola, sklepy i punkty usługowe,
-
tereny spacerowe i rekreacyjne wokół Pałacu Mieroszewskich.
Dojazdy:
-
Czeladź – ok. 4 km, 8–10 min samochodem,
-
Dąbrowa Górnicza (centrum) – ok. 7 km, 12–15 min,
-
Sosnowiec – ok. 10 km, 15–20 min,
-
Katowice – ok. 18 km, 25–35 min w zależności od ruchu.
Bardzo dobra komunikacja zarówno samochodowa, jak i autobusowa – w pobliżu przystanki z bezpośrednimi liniami do miast ościennych.
Dodatkowe informacje:
-
spółdzielcze własnościowe prawo z księgą wieczystą,
-
mieszkanie dostępne od zaraz,
-
posiadamy klucze w biurze – oferta na wyłączność.
To idealna propozycja dla osób szukających mieszkania w spokojnej, zielonej części miasta z potencjałem aranżacyjnym i doskonałą komunikacją z aglomeracją śląską.
Biuro Nieruchomości świadczy odpłatną usługę pośrednictwa. Cena nieruchomości nie uwzględnia kosztów wynagrodzenia biura oraz opłat notarialnych
Agent prowadzący: Agnieszka 600 069 136
Jeśli chcieliby Państwo uzyskać więcej informacji, obejrzeć daną ofertę lub poszukujecie mieszkania, A TO NIE SPEŁNIA PAŃSTWA OCZEKIWAŃ – prosimy o kontakt z Biurem Silesia House 696 003 136; 600 069 136
BEZPŁATNIE dla naszych Klientów - pomagamy w uzyskaniu kredytu na zakup nieruchomości. Współpracujemy z profesjonalnymi doradcami finansowymi, którzy pomogą w udzieleniu kredytu i załatwią za państwa większość formalności w bankach !
Przedstawiona propozycja nie jest ofertą handlową w rozumieniu przepisów prawa, lecz ma charakter informacyjny. Informacje dotyczące oferty na podstawie danych od właściciela, podlegają aktualizacji i nie stanowią oferty określonej w art. 66 i następnych K.C.
Szczegóły




